Tiek uzsākta komerctelpu rezevācija nomai , jaunajā projektā Tukumā
+ Telpas atrodas dzīvojamās mājas 1. stāvā
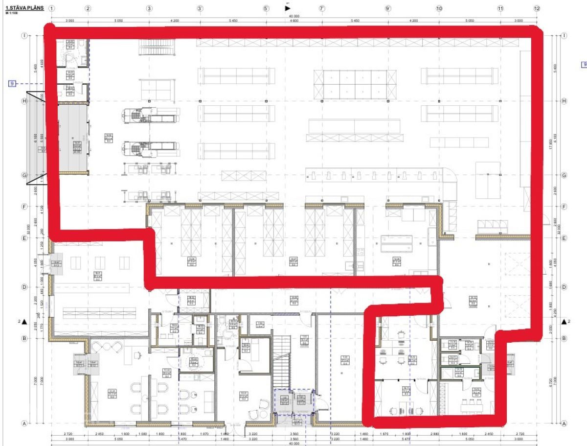
+ Kopējā tirdzniecības telpu platība 890 m2.
+ Plaša autostāvvieta klientiem
+ Blakus atrods lielveikali KSenukai , Mājai un Dārzam , Optimus Mēbeles
+ Blakus plaš dzīvojamais kvartāls ar daudzdzīvokļu mājām un privātmāju ciemats
+ Celtniecības laikā telpas ir vieglāk pielāgot nomnieka prasībām
+ Paredzemais laiks ēkas nodošanai ekspluatācijā , 2026. gada decembris. ReaLat ID: 48093
+ Telpas atrodas dzīvojamās mājas 1. stāvā
+ Kopējā tirdzniecības telpu platība 890 m2.
+ Plaša autostāvvieta klientiem
+ Blakus atrods lielveikali KSenukai , Mājai un Dārzam , Optimus Mēbeles
+ Blakus plaš dzīvojamais kvartāls ar daudzdzīvokļu mājām un privātmāju ciemats
+ Celtniecības laikā telpas ir vieglāk pielāgot nomnieka prasībām
+ Paredzemais laiks ēkas nodošanai ekspluatācijā , 2026. gada decembris. ReaLat ID: 48093